Прикрепленные файлы
| Вложение | Размер |
|---|---|
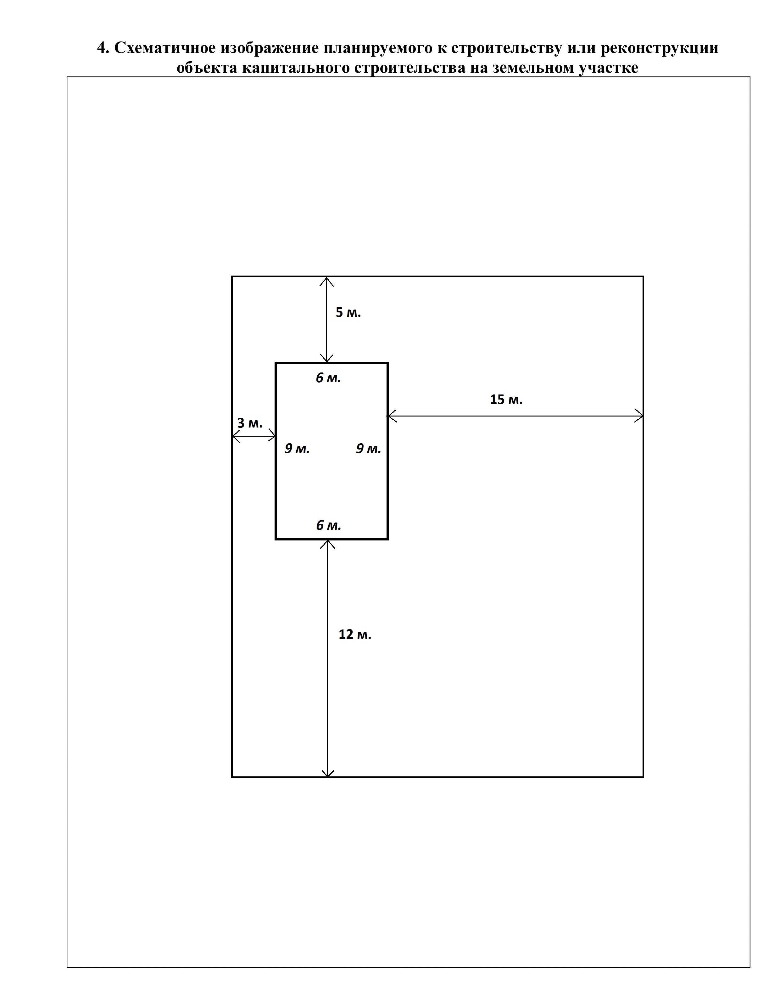
| Как правильно сделать схематичное изображение планируемого к строительству ОКС. (49.79 КБ) | 49.79 КБ |
| Вложение | Размер |
|---|---|
| Образец СХЕМЫ к строительству ОКС (48.67 КБ) | 48.67 КБ |
| Образец СХЕМЫ к строительству ОКС. (153.9 КБ) | 153.9 КБ |
| Заявление для предоставления разрешения на установку информационной вывески, согласование дизайн-проекта.zip (34.44 КБ) | 34.44 КБ |
| Вложение | Размер |
|---|---|
| Уведомления о планируемом сносе ОКС, о завершении сноса ОКС (21.93 КБ) | 21.93 КБ |
| Вложение | Размер |
|---|---|
| Уведомление о соответствии указанных в уведомлении о планируемом строительстве параметров объекта ИЖС или садового дома (73.18 КБ) | 73.18 КБ |
| Вложение | Размер |
|---|---|
| Заявление для выдачи разрешения на ввод объекта в эксплуатацию (112.92 КБ) | 112.92 КБ |
| Вложение | Размер |
|---|---|
| Заявление для выдачи разрешений на установку и эксплуатацию рекламных конструкций (31.25 КБ) | 31.25 КБ |
| Вложение | Размер |
|---|---|
| Заявление для выдачи градостроительного плана земельного участка (102.87 КБ) | 102.87 КБ |
| Вложение | Размер |
|---|---|
| Уведомление о соответствии построенных или реконструированных объектов ИЖС или садового дома (258.12 КБ) | 258.12 КБ |
| Вложение | Размер |
|---|---|
| Заявления для принятия и утверждения документации по ПМТ (74.82 КБ) | 74.82 КБ |
| Вложение | Размер |
|---|---|
| Заявления для выдачи разрешения на строительство, внесение изменений в разрешение на строительство (217.06 КБ) | 217.06 КБ |
| Вложение | Размер |
|---|---|
| Заявление о присвоении адреса объекту адресации, изменение и аннулирование такого адреса (53.42 КБ) | 53.42 КБ |
| Вложение | Размер |
|---|---|
| Заявление для предоставления разрешения на УРВИ земельного участка или ОКС (21.97 КБ) | 21.97 КБ |
| Вложение | Размер |
|---|---|
| Заявление для предоставления разрешения на отклонение от предельных параметров разрешенного строительства, реконструкции ОКС (25.65 КБ) | 25.65 КБ |
| Вложение | Размер |
|---|---|
| Заявление для выдачи акта освидетельствования проведения основных работ по строительству (реконструкции) объекта ИЖС (31.02 КБ) | 31.02 КБ |
| Вложение | Размер |
|---|---|
| Образец Уведомления о планируемой реконструкции (202.81 КБ) | 202.81 КБ |
| Вложение | Размер |
|---|---|
| Образец Уведомления о планируемом строительстве (278.46 КБ) | 278.46 КБ |
| Вложение | Размер |
|---|---|
| БЛАНК Уведомления об изменении параметров планируемого строительства или реконструкции объекта ИЖС или садового дома (15.34 КБ) | 15.34 КБ |
| Вложение | Размер |
|---|---|
| БЛАНК Уведомления о переходе прав на земельный участок, прав пользования недрами, об образовании земельного участка (64 КБ) | 64 КБ |
| Вложение | Размер |
|---|---|
| БЛАНК Соглашения об определении долей в праве долевой собственности (18.51 КБ) | 18.51 КБ |
| Вложение | Размер |
|---|---|
| БЛАНК Согласование эскиза вывески (39.5 КБ) | 39.5 КБ |
| Вложение | Размер |
|---|---|
| БЛАНКИ Заявлений по предоставлению мун. услуги Выдача, продления, закрытие ордера на производство земляных работ. (137 КБ) | 137 КБ |
| Вложение | Размер |
|---|---|
| БЛАНК Заявления на разрешении осуществления земляных работ (37.78 КБ) | 37.78 КБ |
| Вложение | Размер |
|---|---|
| Бланк предоставления сведений из ИСОГД (35.5 КБ) | 35.5 КБ |
